Смотреть видео:

кладовая Kitchen pantry design, Pantry design, Kitchen inspiration design
15 Perfect Ideas: How to Organize Your Kitchen Pantry - City of Creative Dreams
Blended Doors for Standout Style Home kitchens, Dream kitchen, House design
Pin by Kezzah St Clair on Kitchen Pantry design, Kitchen pantry design, Kitchen
Проект КДСП 243-2 - Строительство домов из СИП панелей
Юрий Половинкин 2024 ВКонтакте
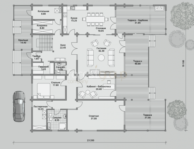
Заказать проект дома к-612 - дома из клееного бруса в компании Группа Форест
This custom kitchen pantry design features an array of organizational elements,
Кладовая комната: 10 креативных идей дизайна интерьера Красотка Kitchen pantry d
10 популярных идей на тему "kitchen design with walk in pantry" для вдохновения
Clever Kitchen Storage Ideas For The New Unkitchen Home kitchens, Kitchen pantry
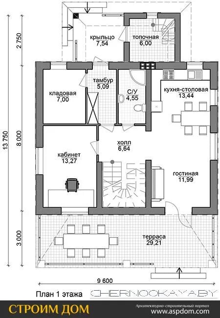
Проект № 192
Super Pantry: Part Kitchen, Closet and Craft Room Woodworking Network Pantry des
The Butler's Pantry Like You've Never Seen It! Pantry design, Kitchen pantry des
66 Best Kitchen Pantry Ideas for Modern Homes in 2024 Idée déco cuisine ouverte,
43 Smart Pantry Ideas to Help You Organize Your Kitchen New kitchen cabinets, Hi
Spiżarnia w kuchnia Kitchen design small, Modern farmhouse kitchens, Modern coun
Pin by Williamsiarra on Kitchen pantry design Kitchen pantry design, Interior de
Pretty good kitchen layout includes pantry, laundry and dining. #Diningroomideas
48 gorgeous corner cabinet storage ideas for your kitchen 17 ⋆ frequence3.org Ki
Walk in pantry Lake house kitchen, Kitchen pantry design, Pantry remodel
50+ Clever Pantry Organization Ideas - The Wonder Cottage Kitchen pantry design,
What do you need in the perfect butler’s pantry? Kitchen pantry design, Pantry d
The Kitchen in 2023 Kitchen layout, Pantry design, Kitchen plans
walk in pantry with a place for everything (food, glassware, china) and even a f
25 Space-Saving Multipurpose Laundry Rooms! Laundry mud room, Pantry design, Rus
15 Kitchen Pantry Ideas With Form And Function Kitchen pantry design, Pantry des
А-005 Дачный дом, Дом для постоянного проживания 15,0 на 9,5 купить домокомплект
Купить Загородный дом 150 кв.м с участком 6 сот. в Всеволожский район Ленинградс
Pantry specs Design rules, Pantry design, Built in pantry