Смотреть видео:

Разработав проект кухни самостоятельно, можно сэкономить до половины стоимости г
Выбираем кухонный гарнитур: стандартные размеры для разных планировок House desi
Модульная кухня угловая - купить в Москве, цена 28 340 руб., дата размещения: 06
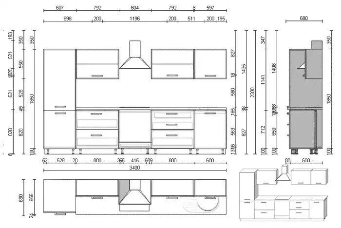
Чертеж кухни с размерами всех шкафов: инструкция составления правильного чертежа
Кухонный гарнитур своими руками: чертежи, видео
Техническое задание для технолога на изготовление мебели - Фабрика мебели на зак
Кухня своими руками: как сделать проект, чертеж и отделку
Пин от пользователя Anastasia Pleshakova на доске diy kitchen Мебель, Домики, Ку
Сделать кухню своими руками чертежи: найдено 90 изображений
Купить Кухня Терра глосс Комплектация 3 по выгодной цене в Москве и РФ Интернет-
Изготовление кухонной мебели своими руками: чертежи, инструкция, видео Мебель, Д
Кухонный гарнитур своими руками: чертежи, видео
Как выбрать кухонный гарнитур с учетом размера кухни
Разработка чертежа и схемы кухонных шкафов с размерами
Кухонный гарнитур своими руками: чертежи, видео
Kitchen design height (52 Photos)
Кухонный гарнитур своими руками: чертежи, видео
Кухня своими руками - как составить проект и собрать кухонный гарнитур
Pin by Tato P on Cocinas Kitchen layout plans, Kitchen furniture design, Kitchen
Угловая кухня своими руками, чертежи и схемы для расчета
5 ВИДОВ ПЛАНИРОВКИ ДЛЯ КУХНИ. ПЛЮСЫ И МИНУСЫ ✅ Выбираете кухню, но не решили как
Кухонный гарнитур своими руками: чертежи, видео
Found on internet Kitchen layout plans, Kitchen layout, Kitchen furniture design
Технолог-конструктор корпусной мебели, работа в ИП Волков В.А. во Владивостоке -
Useful Kitchen Dimensions And Layout - Engineering Discoveries Kitchen cabinet l
Деталировка-ее стоимость
Кухня своими руками - как составить проект и собрать кухонный гарнитур
diy kitchen panosundaki Pin Mutfak iç dekorasyonu, Iç tasarım mutfak, Mimari kon
Кухонная мебель своими руками чертежи: особенности изготовления мебели Дизайн кл
Изготовление кухни в Серове - Ремонт и строительство: 116 мастеров по изготовлен