Смотреть видео:

Dining Table Woodworking Project Woodsmith Plans Diy dining table, Woodworking t
Как собрать кухонный стол инструкция - подготовка и этапы работы
Купить Комплект столовой мебели Halmar CORDOBA (стол + 4 стула) дуб в Минске с д
Кухонный стол своими руками: эргономика, компоненты, чертежи, сборка
Скамейка в баню своими руками чертежи
Woodtools - Книги - Illustrated Cabinetmaking
Толщина кухонного стола
Стол из дерева своими руками: чертежи и схемы, инструменты и материалы, как сдел
Удобство и практичность в одном изделии - стол-стеллаж трансформер - Сделаем меб
Как сделать кухонный стол из дерева своими руками
Купить обеденный стол.
Как сделать обеденный стол своими руками из дерева
Обеденный стол своими руками по чертежу: как его сделать?
Build a Simple Reclaimed Wood Table Wood table diy, Reclaimed wood table, Reclai
How to Make a Table (with Pictures) - wikiHow Make a table, Table, Woodworking
Стол складной (кухонный) 1964 Мангайм Г.М., Патронников А.К. - Сделайте сами
Стеклянный стол своими руками: как сделать, чертежи
Стол - книжка "Оптима" купить в Svp-mebel.ru Цена 2796 рублей Доставка по Москве
Кухонный стол своими руками: 90 фото, схемы и чертежи простых столов для обустро
Обеденный стол на кухню
Build This Rustic Farmhouse Table - PopularMechanics.com Rustic farmhouse table,
Зварювальний стіл своїми руками Сварочный стол, Стол своими руками, Стол
Кухонный стол своими руками: эргономика, компоненты, чертежи, сборка
Стол своими руками - инструкция, по которой стол соберет даже новичок
Console Dining Table Convertible Great Passage Convertible Console Dining Table
Как сделать стол из ДСП своими руками: пошаговая инструкция сборки с пояснениями
ХОТЬ НА КУХНЮ, ХОТЬ В КОМНАТУ МОДЕЛИСТ-КОНСТРУКТОР
Самодельный деревянный стол с поперечиной внизу Стол из досок, Сделать стол, Сто
Чертежи стола обеденного - Дом Мебели.ру
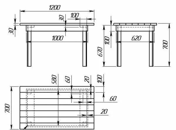
На рисунке приведен чертеж стола размером 80х120 см. Высота стола с учетом толщи