Смотреть видео: Подключение бойлера к отоплению в частном доме



Подключение бойлера к отоплению в частном доме

Подключение бойлера к отоплению в частном доме Подключение бойлера к водопроводу - все доступные способы
Подключение бойлера к водопроводу - все доступные способы
Подключение бойлера к отоплению в частном доме Схема подключения бака косвенного нагрева - основные схемы подключения, обвязка,
Схема подключения бака косвенного нагрева - основные схемы подключения, обвязка,
Подключение бойлера к отоплению в частном доме К котлам Насосно-смесительный узел, новый, в наличии. Цена: 8 700 ₽ во Владивост
К котлам Насосно-смесительный узел, новый, в наличии. Цена: 8 700 ₽ во Владивост
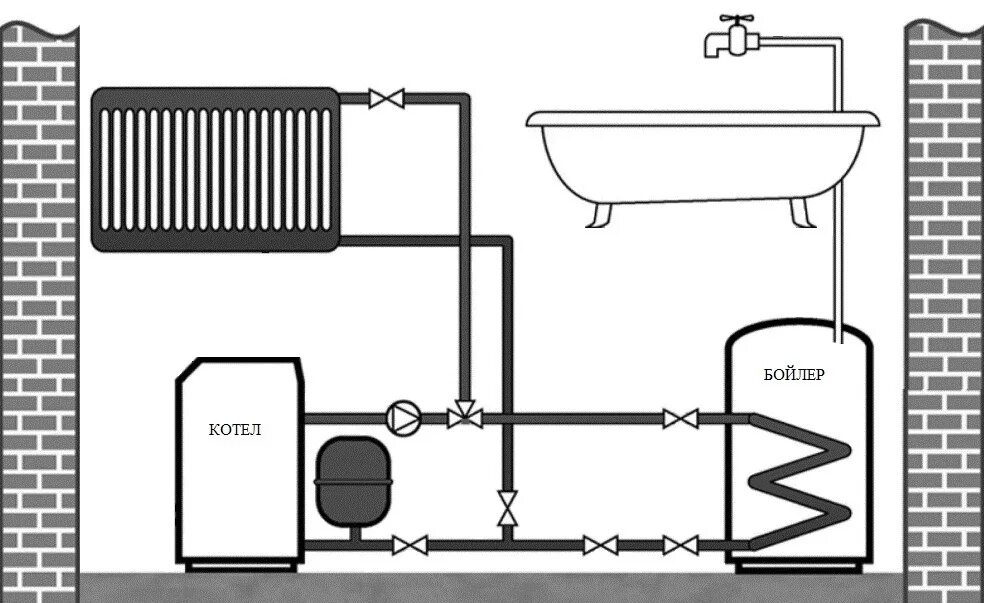
Подключение бойлера к отоплению в частном доме Схема обвязки котла с бойлером косвенного нагрева - Подключение бойлера косвенно
Схема обвязки котла с бойлером косвенного нагрева - Подключение бойлера косвенно
Подключение бойлера к отоплению в частном доме Теплый пол водяной от газового котла - Схема теплого пола водяного в частном дом
Теплый пол водяной от газового котла - Схема теплого пола водяного в частном дом
Подключение бойлера к отоплению в частном доме Настенные котлы косвенного нагрева - найдено 90 картинок
Настенные котлы косвенного нагрева - найдено 90 картинок
Подключение бойлера к отоплению в частном доме Подключение бойлера косвенного нагрева к одноконтурному котлу - схемы, варианты,
Подключение бойлера косвенного нагрева к одноконтурному котлу - схемы, варианты,
Подключение бойлера к отоплению в частном доме Бойлер косвенного нагрева для электрокотла фото - DelaDom.ru
Бойлер косвенного нагрева для электрокотла фото - DelaDom.ru
Подключение бойлера к отоплению в частном доме Regulus TSV6 B DN40 65 ° C Смесительный Термостат Купить
Regulus TSV6 B DN40 65 ° C Смесительный Термостат Купить
Подключение бойлера к отоплению в частном доме Подключение ГВС для настенного котла со встроенным бойлером - Geffen
Подключение ГВС для настенного котла со встроенным бойлером - Geffen
Подключение бойлера к отоплению в частном доме Купить бойлер косвенного нагрева воды Челябинск Купи насос
Купить бойлер косвенного нагрева воды Челябинск Купи насос
Подключение бойлера к отоплению в частном доме Обвязка бойлера косвенного нагрева, схема
Обвязка бойлера косвенного нагрева, схема
Подключение бойлера к отоплению в частном доме Буферная емкость Reflex Storatherm Heat HF 1500/1_C с одним змеевиком купить по
Буферная емкость Reflex Storatherm Heat HF 1500/1_C с одним змеевиком купить по
Подключение бойлера к отоплению в частном доме Котел бойлер отопление
Котел бойлер отопление
Подключение бойлера к отоплению в частном доме Котлы газовые для отопления дома настенные двухконтурные: принцип работы, цены,
Котлы газовые для отопления дома настенные двухконтурные: принцип работы, цены,
Подключение бойлера к отоплению в частном доме Обвязка бойлера косвенного нагрева - Подключение бойлера косвенного нагрева: схе
Обвязка бойлера косвенного нагрева - Подключение бойлера косвенного нагрева: схе
Подключение бойлера к отоплению в частном доме Рециркуляция горячей воды: схема гвс с циркуляцией в частном доме и квартире
Рециркуляция горячей воды: схема гвс с циркуляцией в частном доме и квартире
Подключение бойлера к отоплению в частном доме Подключение бойлера косвенного нагрева к одноконтурному котлу
Подключение бойлера косвенного нагрева к одноконтурному котлу
Подключение бойлера к отоплению в частном доме Датчик бойлера котла - Теплоэнергетика
Датчик бойлера котла - Теплоэнергетика
Подключение бойлера к отоплению в частном доме Подключение бойлера косвенного нагрева к одноконтурному котлу - схемы, варианты,
Подключение бойлера косвенного нагрева к одноконтурному котлу - схемы, варианты,
Подключение бойлера к отоплению в частном доме Бойлер косвенного нагрева - принцип работы, как выбрать, преимущества
Бойлер косвенного нагрева - принцип работы, как выбрать, преимущества
Подключение бойлера к отоплению в частном доме Подключение котла - Схема подключения котла отопления в частном доме
Подключение котла - Схема подключения котла отопления в частном доме
Подключение бойлера к отоплению в частном доме Подключение и обвязка косвенного бойлера к газовому котлу - в Ростове-на-Дону ✅
Подключение и обвязка косвенного бойлера к газовому котлу - в Ростове-на-Дону ✅
Подключение бойлера к отоплению в частном доме Подключение бойлера косвенного нагрева: схема обвязки с рециркуляцией, котельная
Подключение бойлера косвенного нагрева: схема обвязки с рециркуляцией, котельная
Подключение бойлера к отоплению в частном доме Картинки по запросу отопление дома из бойлера Bar chart, Lettering, Chart
Картинки по запросу отопление дома из бойлера Bar chart, Lettering, Chart
Подключение бойлера к отоплению в частном доме Как подключить бойлер к одноконтурному газовому котлу
Как подключить бойлер к одноконтурному газовому котлу
Подключение бойлера к отоплению в частном доме Газовые котлы для отопления и горячего водоснабжения частного дома: плюсы и мину
Газовые котлы для отопления и горячего водоснабжения частного дома: плюсы и мину
Подключение бойлера к отоплению в частном доме Котел с бойлером газовый фото - DelaDom.ru
Котел с бойлером газовый фото - DelaDom.ru
Подключение бойлера к отоплению в частном доме Газовый котел со встроенным бойлером: двухконтурный настенный, послойный нагрев,
Газовый котел со встроенным бойлером: двухконтурный настенный, послойный нагрев,