Смотреть видео: Подключение бойлера косвенного baxi slim



Подключение бойлера косвенного baxi slim

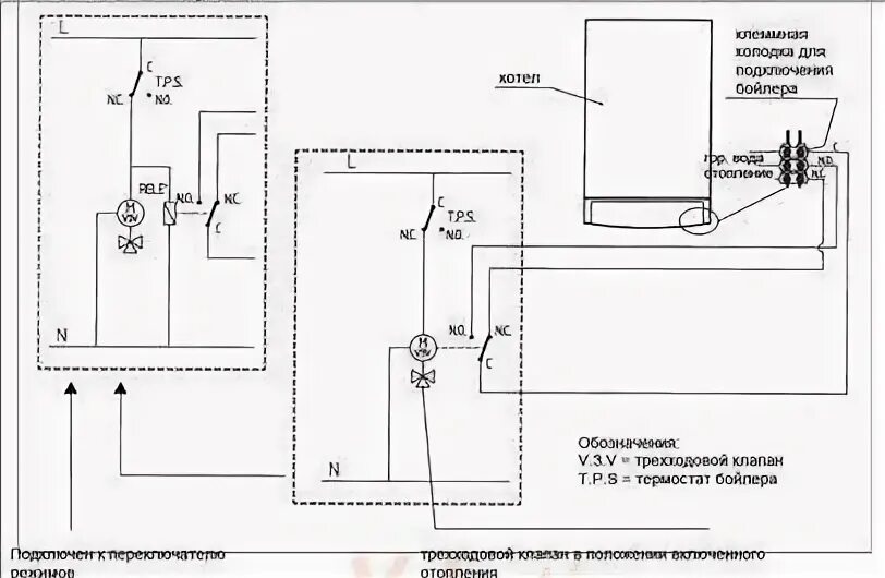
Подключение бойлера косвенного baxi slim Baxi SLIM I-IN 20/40 Присоединение бойлера других торговых марок имеющего встрое
Baxi SLIM I-IN 20/40 Присоединение бойлера других торговых марок имеющего встрое
Подключение бойлера косвенного baxi slim Газовый котел Baxi SLIM. Котел напольный: 87900 KGS ▷ Котлы Бишкек 64116470 ᐈ la
Газовый котел Baxi SLIM. Котел напольный: 87900 KGS ▷ Котлы Бишкек 64116470 ᐈ la
Подключение бойлера косвенного baxi slim Baxi slim 1.400 in 15/40 Электрическая схема
Baxi slim 1.400 in 15/40 Электрическая схема
Подключение бойлера косвенного baxi slim Котел baxi с возможностью подключения бойлера косвенного нагрева фото, видео - F
Котел baxi с возможностью подключения бойлера косвенного нагрева фото, видео - F
Подключение бойлера косвенного baxi slim Котельная в доме 200м2 - DRIVE2
Котельная в доме 200м2 - DRIVE2
Подключение бойлера косвенного baxi slim Картинки БАКСИ ЛУНА ПОДКЛЮЧЕНИЕ БОЙЛЕРА
Картинки БАКСИ ЛУНА ПОДКЛЮЧЕНИЕ БОЙЛЕРА
Подключение бойлера косвенного baxi slim Baxi slim 1.400 in 19/40 Присоединение бойлера других торговых марок
Baxi slim 1.400 in 19/40 Присоединение бойлера других торговых марок
Подключение бойлера косвенного baxi slim Монтаж отопления в Грозном
Монтаж отопления в Грозном
Подключение бойлера косвенного baxi slim Подключение датчика температуры и насоса загрузки бойлера к котлу baxi slim. - Y
Подключение датчика температуры и насоса загрузки бойлера к котлу baxi slim. - Y
Подключение бойлера косвенного baxi slim BAXI Котел напольный Slim 1.300 iN, купить, цена, отзывы, фото
BAXI Котел напольный Slim 1.300 iN, купить, цена, отзывы, фото
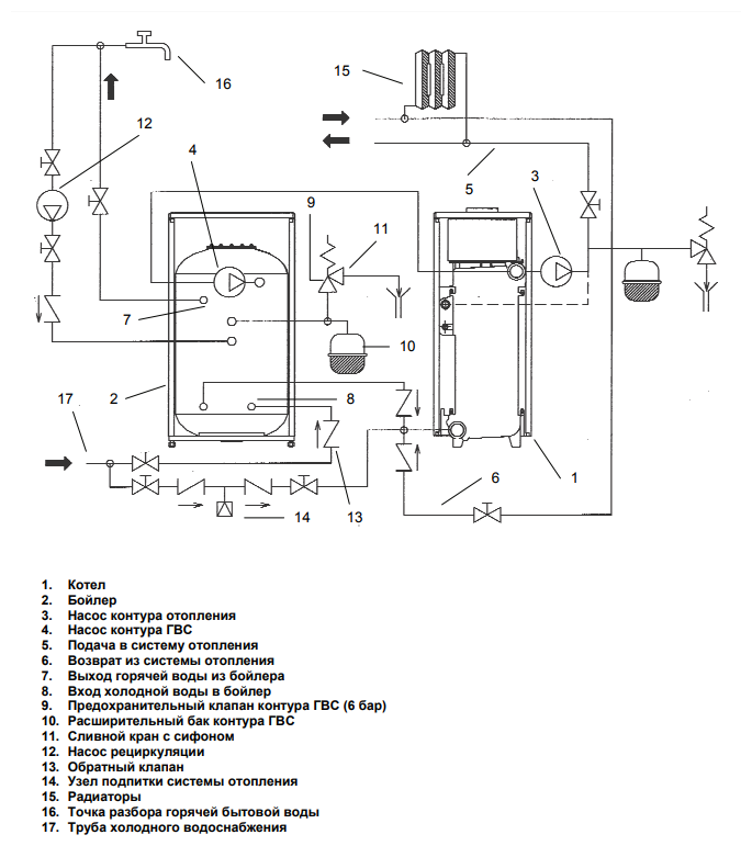
Подключение бойлера косвенного baxi slim Бойлер для отопления частного дома - виды бойлеров для отопления, устройство и т
Бойлер для отопления частного дома - виды бойлеров для отопления, устройство и т
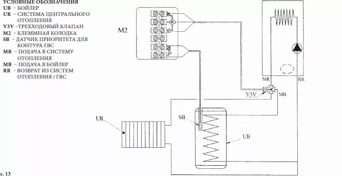
Подключение бойлера косвенного baxi slim Принципиальная схема обвязки котельного оборудования - Форум сантехников, о сант
Принципиальная схема обвязки котельного оборудования - Форум сантехников, о сант
Подключение бойлера косвенного baxi slim Емкостной водонагреватель BAXI PREMIER Plus 300л напольная установка 95805096 -
Емкостной водонагреватель BAXI PREMIER Plus 300л напольная установка 95805096 -
Подключение бойлера косвенного baxi slim Трехходовой для подключения бойлера
Трехходовой для подключения бойлера
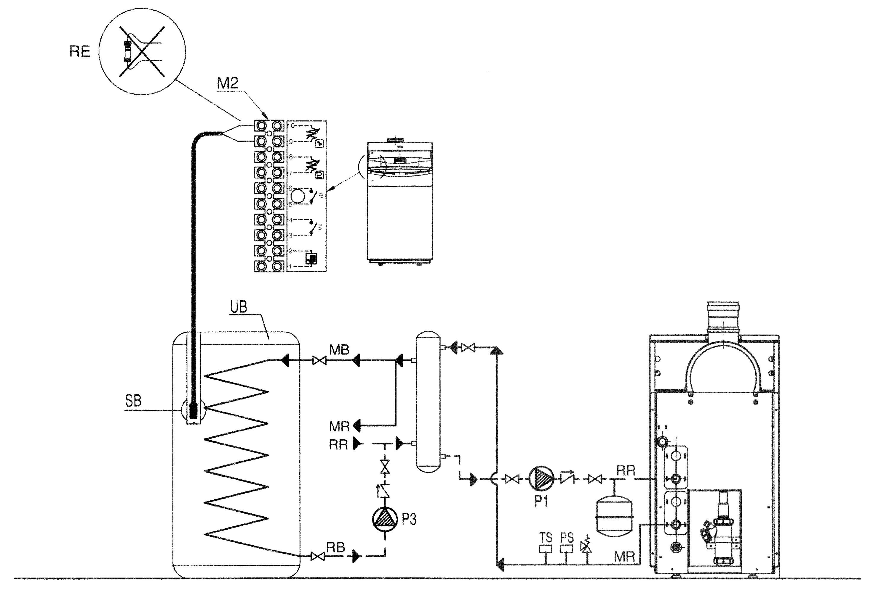
Подключение бойлера косвенного baxi slim Baxi SLIM UB 120 INOX 11/16 Электрическое подсоединение к котлу
Baxi SLIM UB 120 INOX 11/16 Электрическое подсоединение к котлу
Подключение бойлера косвенного baxi slim Емкостной водонагреватель для настенных котлов BAXI UB 80 KSG71412211 - купить с
Емкостной водонагреватель для настенных котлов BAXI UB 80 KSG71412211 - купить с
Подключение бойлера косвенного baxi slim Водонагреватель накопительный - он же бойлер косвенного нагрева. Принцип работы
Водонагреватель накопительный - он же бойлер косвенного нагрева. Принцип работы
Подключение бойлера косвенного baxi slim Бойлер косвенного нагрева BAXI UBT 200 200л (39,3 кВт) белый с возможностью подк
Бойлер косвенного нагрева BAXI UBT 200 200л (39,3 кВт) белый с возможностью подк
Подключение бойлера косвенного baxi slim Бойлер косвенного нагрева Baxi SLIM UB 80 - купить по выгодной цене на Яндекс Ма
Бойлер косвенного нагрева Baxi SLIM UB 80 - купить по выгодной цене на Яндекс Ма
Подключение бойлера косвенного baxi slim Форум сантехников * Форум отопление - Подключение бойлера косвенного нагрева
Форум сантехников * Форум отопление - Подключение бойлера косвенного нагрева
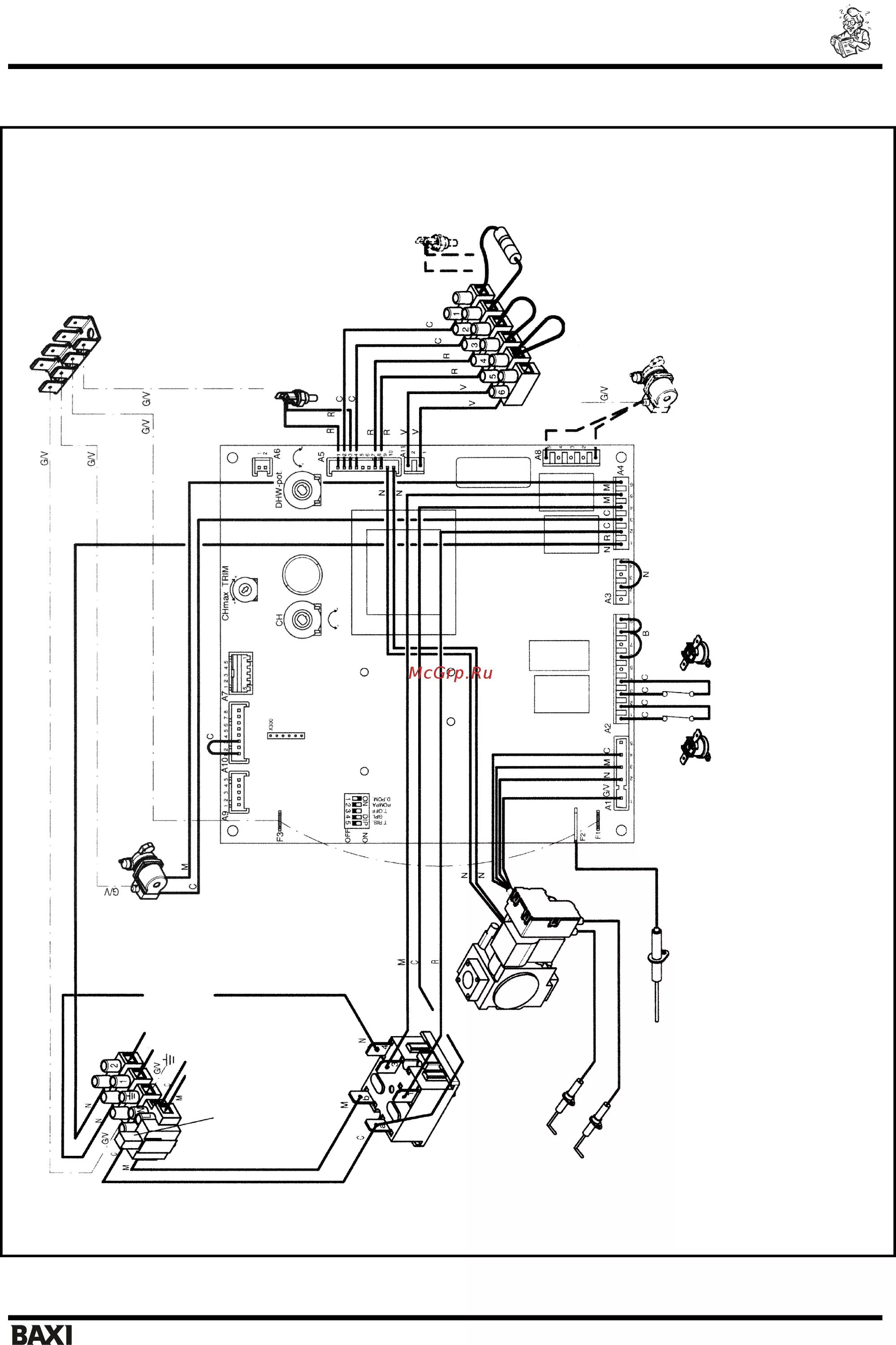
Подключение бойлера косвенного baxi slim Инструкции к котлам BAXI. Монтаж газовых котлов Baxi: схема подключения и инстру
Инструкции к котлам BAXI. Монтаж газовых котлов Baxi: схема подключения и инстру
Подключение бойлера косвенного baxi slim Дистанционное управление газовым котлом BAXI
Дистанционное управление газовым котлом BAXI
Подключение бойлера косвенного baxi slim Как устроен бойлер косвенного нагрева Baxi (Бакси)
Как устроен бойлер косвенного нагрева Baxi (Бакси)
Подключение бойлера косвенного baxi slim Емкостной водонагреватель для напольных котлов BAXI SLIM UB INOX 120 KSW71408791
Емкостной водонагреватель для напольных котлов BAXI SLIM UB INOX 120 KSW71408791
Подключение бойлера косвенного baxi slim Устройства регулировки и приборы защиты котлов Бакси Экофор
Устройства регулировки и приборы защиты котлов Бакси Экофор
Подключение бойлера косвенного baxi slim Картинки ПОДКЛЮЧЕНИЕ КОТЛОВ БАКСИ СЛИМ
Картинки ПОДКЛЮЧЕНИЕ КОТЛОВ БАКСИ СЛИМ
Подключение бойлера косвенного baxi slim Схемы подключения котлов baxi: найдено 90 изображений
Схемы подключения котлов baxi: найдено 90 изображений
Подключение бойлера косвенного baxi slim Картинки ПОДКЛЮЧЕНИЕ BAXI SLIM
Картинки ПОДКЛЮЧЕНИЕ BAXI SLIM
Подключение бойлера косвенного baxi slim Емкостной водонагреватель для напольных котлов BAXI SLIM UB 120 KSW71412251 - ку
Емкостной водонагреватель для напольных котлов BAXI SLIM UB 120 KSW71412251 - ку
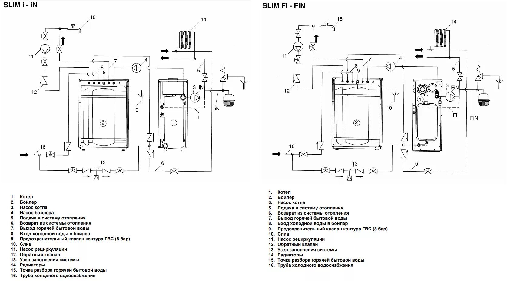
Подключение бойлера косвенного baxi slim Присоединение накопительного бойлера для горячей воды Baxi Slim Fi-FiN
Присоединение накопительного бойлера для горячей воды Baxi Slim Fi-FiN