Смотреть видео:

Чертежи откатных ворот с размерами бесплатно. Схемы, фото эскизов конструкций и
Бюджетные варианты откатных ворот своими руками: Пошаговая инструкция и Чертежи
Откатные вороты чертежи и схемы - "Fort"
Построим свой дом Строительство своими руками, 3 апр. 2021 в 18:41 Схемы откатны
Картинки СКЛАДНОЙ ВОРОТА СВОИМИ РУКАМИ ЧЕРТЕЖИ
откатные ворота своими руками чертежи схемы эскизы конструкция: 3 тыс изображени
откатные ворота своими руками чертежи схемы эскизы конструкция: 18 тыс изображен
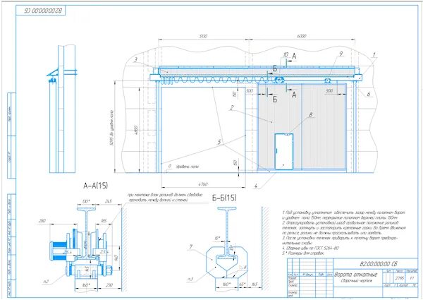
Ворота откатные проем 5720 - Чертежи, 3D Модели, Проекты, Металлоконструкции
Чертеж ворот (69)
КОМПЛЕКТУЮЩИЕ ДЛЯ ПОДВЕСНЫХ ВОРОТ
Устанавливаем гаражные откатные ворота своими руками
Примеры конструктивных решений
Чертежи откатных ворот с калиткой - схемы подвесных ворот с электроприводом: раб
Подвесные ворота чертежи
Ворота двери раздвижные
Как сделать откатные ворота самому Vparnike.ru Ворота, Идеи для забора, Веранда
Купить промышленные подвесные ворота в Москве от производителя - Vorota RU: Авто
Подвесные откатные ворота под ключ от производителя в Санкт-Петербурге - Заборик
Противопожарные металлические ворота ООО Двери Оптом
Комплект KIT 81G для подвесных ворот весом до 360 кг
Навесные Ворота Своими Руками Чертежи Фото И - Karevaphoto.ru
Откатные подвесные ворота своими руками
Откатные подвесные ворота своими руками
Откатные ворота с верхней фермой Откатные ворота АО "ЦеСИС". Системы охраны пери
Ворота подвесные - особенности конструкции, цены
Изготовление конструкций подвесных ворот своими руками
Фото ворота подвесные 377468, Набережные Челны, стиль Классический, рубрика Мета
Запчасти для ворот
Подвесные откатные ворота для въезда - купить недорого в Темрюке
Подвесные откатные ворота на роликах своими руками